当前位置:首页> 政务公开> 最新文件

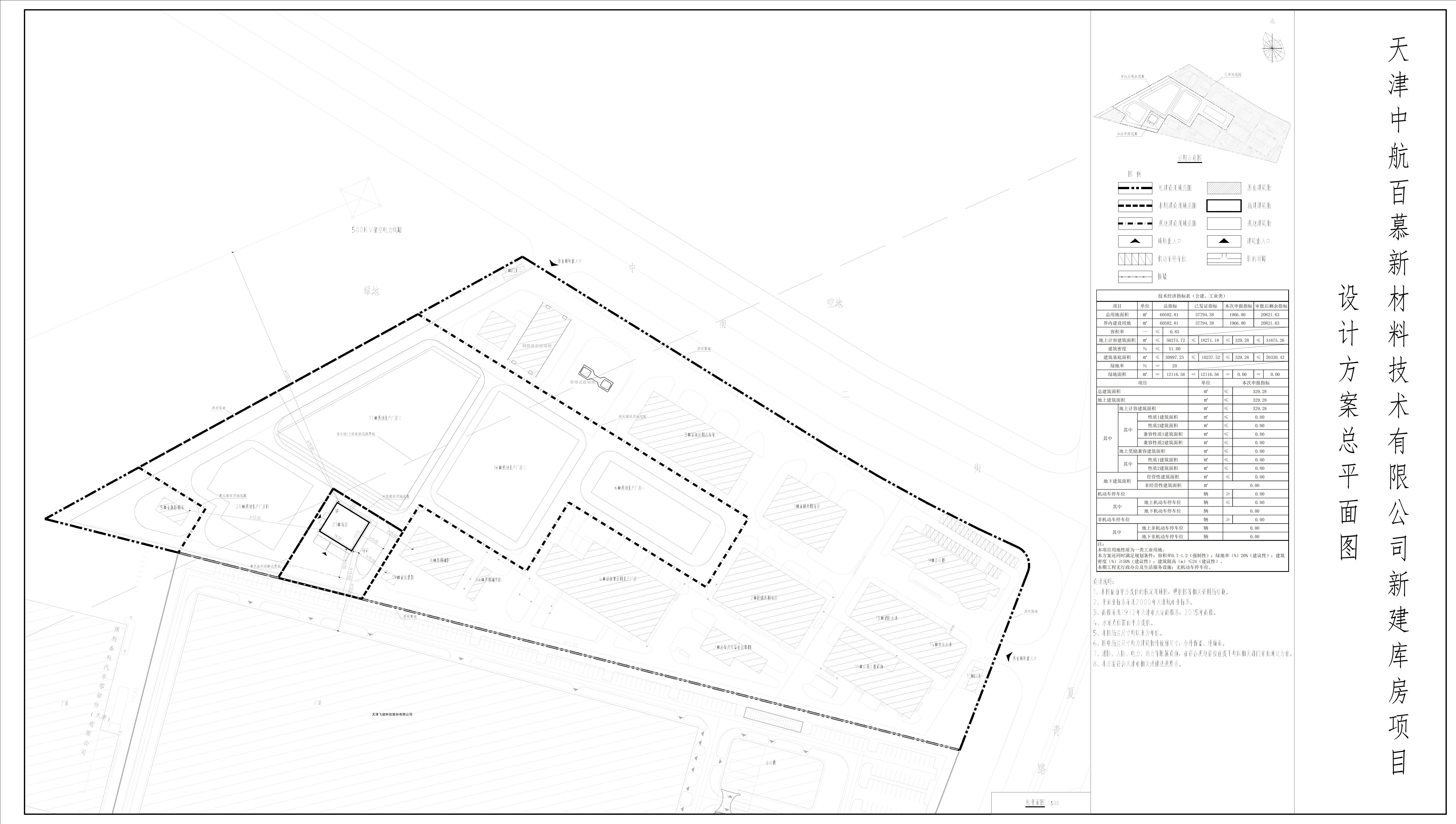
关于天津中航百慕新材料技术有限公司新建库房项目总平面图的公布
发布日期: 2025-08-15 15:39      来源: 天津经济技术开发区
字号:
  • 扫一扫在手机打开当前页

    天津中航百慕新材料技术有限公司新建库房项目总平面图已审批,审批时间为2025年8月14日,证书编号为2025开发建证0055。按照《中华人民共和国城乡规划法》、《天津市城乡规划条例》的要求,现将上述工程总平面图予以公布,公布期限为信息发布之日起至建设项目规划验收合格为止。

    通讯地址:天津滨海新区于家堡宝信大厦裙房6楼

    联系电话:022-25201516

    邮政编码:300457



    天津经济技术开发区规划和自然资源局

    2025年8月15日                

    主办单位:天津经济技术开发区管理委员会
    网站标识码:1201160062  |  备案序号:津ICP备05001677号  |   津公网安备 12019002000128
    联系方式:xxgk@teda.gov.cn | 推荐使用IE8及以上版本浏览器浏览

    主办单位:天津经济技术开发区管理委员会
    网站标识码:1201160062
    备案序号:津ICP备05001677号
     津公网安备 12019002000128
    联系方式:xxgk@teda.gov.cn | 推荐使用IE8及以上版本浏览器浏览