当前位置:首页> 政务公开> 最新文件

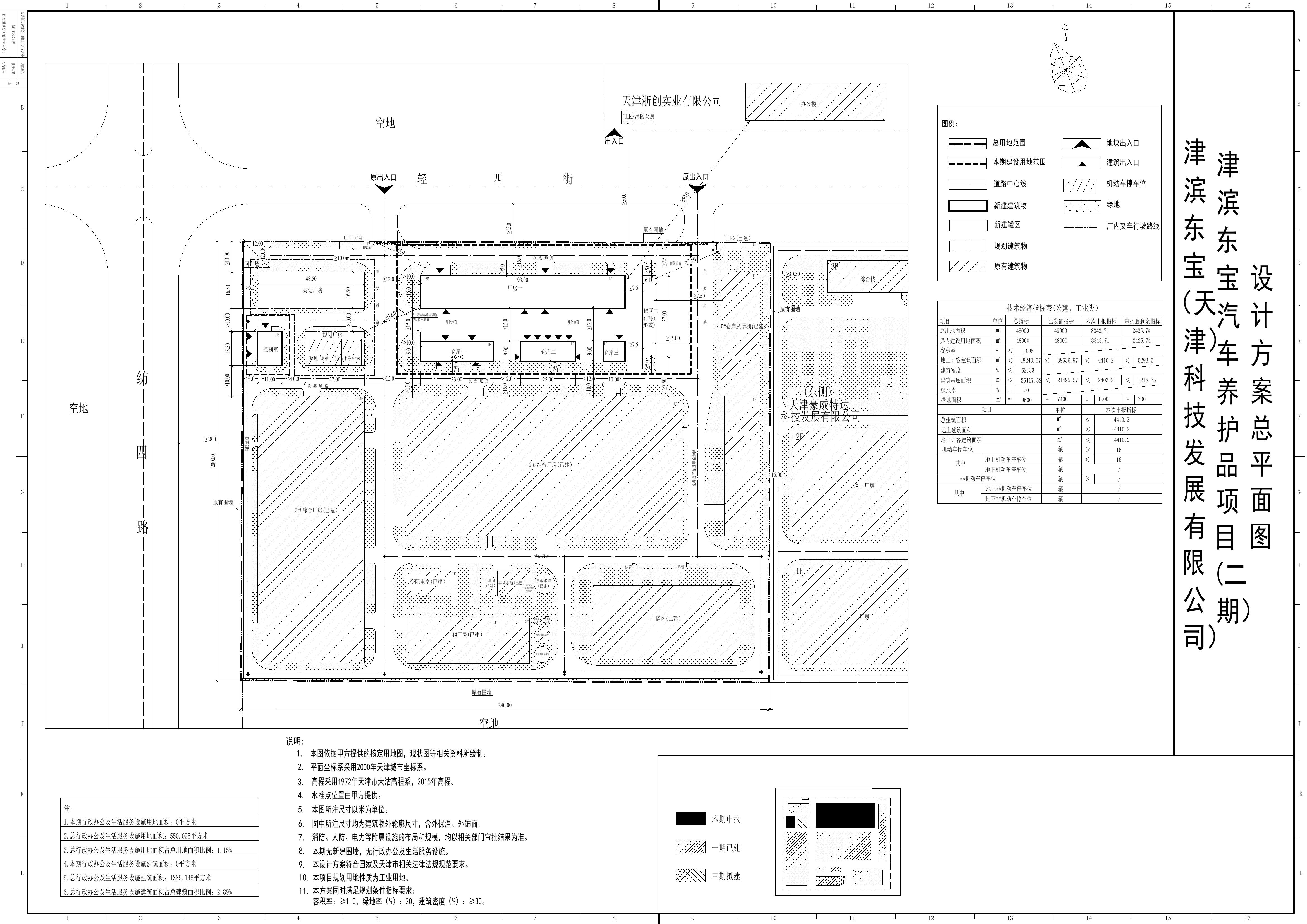
关于津滨东宝(天津)科技发展有限公司津滨东宝汽车养护品项目(二期)总平面图的公布
发布日期: 2025-05-29 14:46      来源: 天津经济技术开发区
字号:
  • 扫一扫在手机打开当前页

    津滨东宝(天津)科技发展有限公司津滨东宝汽车养护品项目(二期)规划方案总平面图已审批,审批时间为2025年5月27日,证书编号为2025开发建证0033。按照《中华人民共和国城乡规划法》、《天津市城乡规划条例》的要求,现将上述工程总平面图予以公布,公布期限为信息发布之日起至建设项目规划验收合格为止。

    通讯地址:天津滨海新区于家堡宝信大厦裙房6楼

    联系电话:022-25201516

    邮政编码:300457


    天津经济技术开发区规划和自然资源局

    2025年5月29日                

    主办单位:天津经济技术开发区管理委员会
    网站标识码:1201160062  |  备案序号:津ICP备05001677号  |   津公网安备 12019002000128
    联系方式:xxgk@teda.gov.cn | 推荐使用IE8及以上版本浏览器浏览

    主办单位:天津经济技术开发区管理委员会
    网站标识码:1201160062
    备案序号:津ICP备05001677号
     津公网安备 12019002000128
    联系方式:xxgk@teda.gov.cn | 推荐使用IE8及以上版本浏览器浏览